본문 바로가기
메인메뉴
전체메뉴열기
사업안내
하위분류
사업개요
입지환경
프리미엄
오시는길
민간임대
단지안내
하위분류
단지배치도
동호수배치도
평면안내
하위분류
59A
74A
74B
방문예약신청
사업안내
사업개요
입지환경
프리미엄
오시는길
민간임대
단지안내
단지배치도
동호수배치도
평면안내
59A
74A
74B
방문예약신청
1555-0763
문자상담
전화상담
방문예약
문자상담
개인정보수집이용 동의
문자상담신청
대표전화
1555-0763
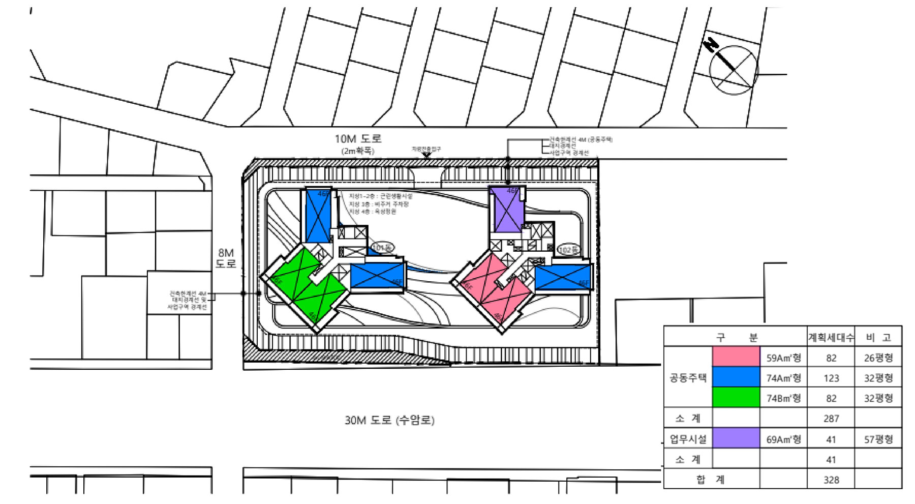
단지배치도
울산 스카이더원
단지안내
사업안내
단지안내
평면안내
방문예약신청
단지배치도
단지배치도
동호수배치도
단지배치도
선호도 높은 중소형 (전용 59·74㎡) 평형대 위주 세대 구성
동별 탑층 하이엔드급 스카이라운지 커뮤니티 구성
TOP